Gepflegtes EFH mit ELW in HL, OT Dänischburg

23569 Lübeck

Art-Icon Art: Haus
Zimmer-Icon Zimmer: 5
Badezimmer-Icon Badezimmer: 2
Wohnfläche ca.-Icon Wohnfläche ca. 130 m²
Grundstück ca.-Icon Grundstück ca. 880 m²
Preis-Icon Kaufpreis: 299.000,00 EUR

Energieausweis

0 50 100 150 200 250 300 350 400 +

Endenergiebedarf: 224,10 kWh/(m²·a)

Was Sie über dieses Objekt wissen sollten

  • 7588
  • Haus
  • 1955
  • 5
  • 2
  • 2
  • 130 m²
  • 880 m
  • 4
  • Gas
  • Ja

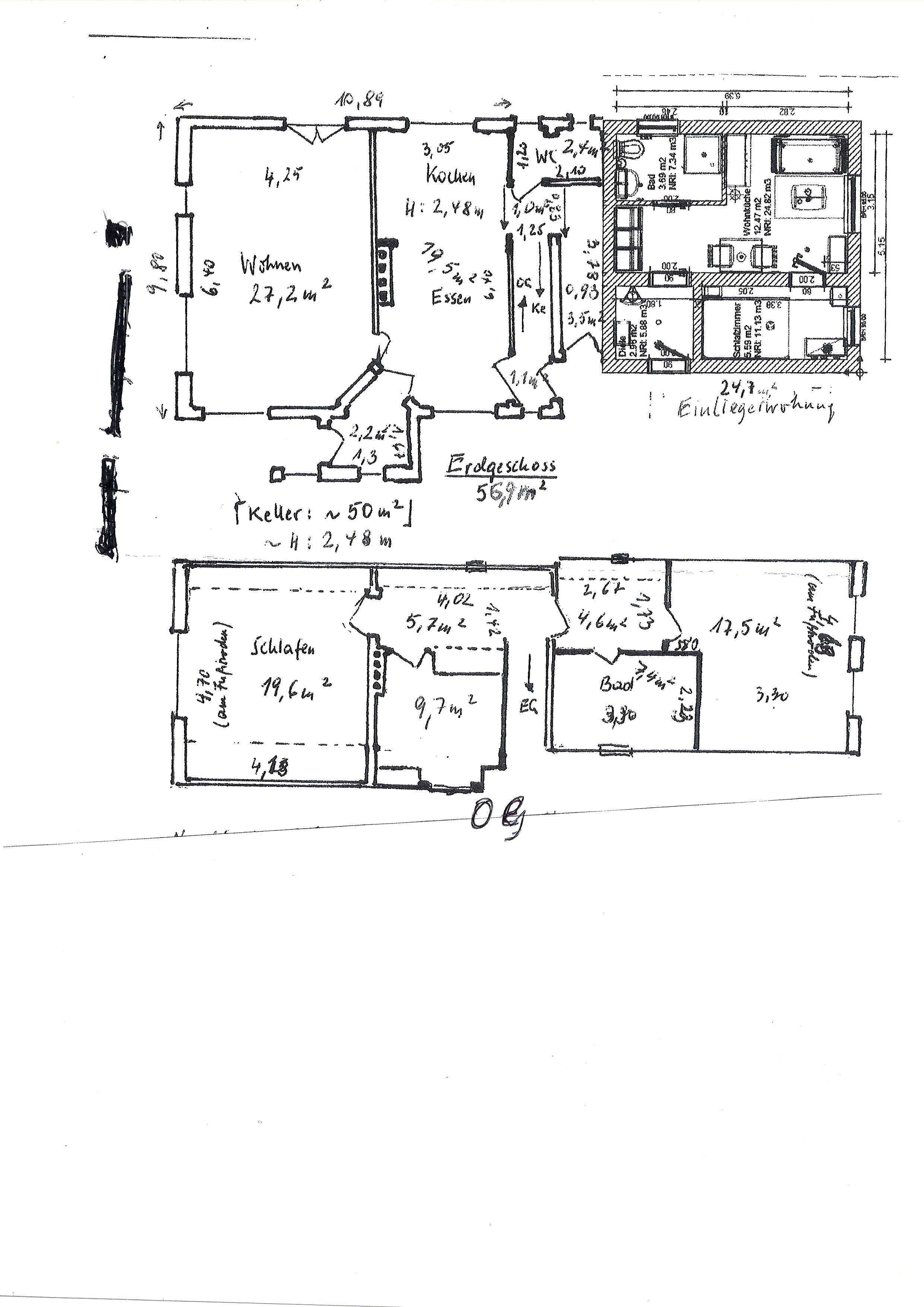
Objektbeschreibung

Dieses sehr gepflegte Einfamilienhaus mit einer Einliegerwohnung wir aus Altersgründen verkauft.
Noch können die Besitzer das Objekt bestens in einem guten Zustand halten.
Deshalb ist es kein Notverkauf.
Besonderheiten sind nicht nur die 4 Ein. bzw Ausgängen sondern auch die hohen Kellerdecken in der
sich auch die Werkstatt, der Hauswirtschaftsraum sowie die Gaszentralheizung befindet.
Im Erdgeschoss ist der Gäste WC mit einem Duschbad, die Küche mit einem Essbereich, einer Nolte Einbauküche
sowie das Wohnzimmer mit guten Stellflächen.
Gehen Sie über die Treppe zum Obergeschoss und ersehen Sie im langgezogenen Flur einige Einbauschränke.
Ferner ist dort das Schlafzimmer mit PVC Fußbodenbelag das Kinderzimmer und ein Büro jeweils mit einem Parkettfußboden.
Das Wannenbad mit Wandhohen Fliesen ist sehr geräumig.
Nicht unerwähnt sollte bleiben das auch der Dachboden und auch die Außenwände gedämmt sind..
Eine Garage, 3 PKW Außenstellplätze und ein Gewächshaus runden das Angebot ab.

Ausstattung und Besonderheiten dieses Objektes

Massivbauweise
Vollkeller
Gaszentralheizung
Nolte Einbauküche
Wannenbad
Gäste WC mit Duschbad
Kunststoff Doppelverglasung
Teilweise Parkettfußboden
Garage
3 PKW Außenstellplätze
Werkstatt
überdachte Terrasse
Gewächshaus
Erbpacht Grundstück bis 2054 Erbpachtzins ist 98,32 € im Jahr

Lage und Umfeld dieser Immobilie

Dänischburg, ein Ortsteil der Hansestadt Lübeck bildet zusammen mit den Ortsteilen Siems, Rangenberg und Wallberg den Stadtbezirk27 des Stadtteils Kücknitz.
Der Bezirk liegt am nördlichen Traveufer, das nur zu einem kleinen Teil überbaut ist.
Damit verfügt Dänischburg über einen natürlichen Zugang zu Trave.
Durch Dänischburg führt die Kreisstraße K 9 als Hauptverkehrsachse.
Vom ruhig liegenden Objekt sind Sie in kurzer Zeit an der A 226 mit den Richtungen nach Hamburg, Rostock und Travemünde.
Das Ikea Einkaufszentrum ist fussläufig gut zu erreichen.
Beste Infrastruktur finden Sie in den naheliegenden Orten, Sereetz, Kücknitz und Ratekau.
In kurzer Zeit sind Sie auch in den Ostseebädern

Courtage

3,57 % (exkl. % MwSt.)

je zu zahlen vom Käufer und Verkäufer nach dem notariellen Kaufvertrag an die Firma Erika Zech Immobilien.e.K. Zollweg 2a, 23611 Sereetz

Die richtige Immobilie war noch nicht dabei?

Wir senden Ihnen passende Angebote per E-Mail!

Kontaktieren Sie uns! Exposé drucken